FABBRICATO TERRA CIELO DA RISTRUTTURARE, COMO PRIMA PERIFERIA

Como (Monte Olimpino)
Stabile / Palazzo In Vendita
Codice: V000174
Prezzo
980.000 €
Descrizione
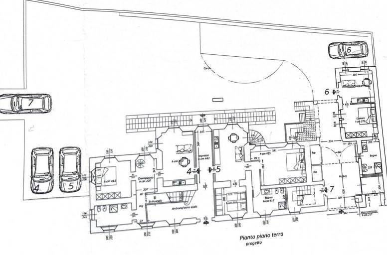
Vendesi immobile di ampia metratura completamente da ristrutturare con grande potenziale di trasformazione.
La proprietà si presta alla realizzazione di 14 camere più servizio e posto auto, rendendola una soluzione perfetta per:
B&B, Affittacamere, Piccolo hotel, Casa Vacanze, Struttura per residenti e/o lavoratori.
OTTIMO INVESTIMENTO per chi desidera sviluppare un'attività ricettiva o valorizzare l'immobile dopo la ristrutturazione, con un forte potenziale di redditività. Zona ampiamente servita.
Caratteristiche principali
Codice:
V000174
Città:
Como (Monte Olimpino)
Categoria:
Stabile / Palazzo
Locali:
14
Camere:
14
Bagni:
14
Mq:
1000
Posti auto:
11
Anno:
1967
Classe energetica:
In fase di valutazione
Stato Immobile:
Da Ristrutturare
Grado:
Medio
Posizione:
Centro
Panorama:
Vista Lago
Lati Liberi:
3
Giardino:
Privato
Accessori
Passaggio Automobilistico, Passaggio Pedonale
Mappa
Via Nino Bixio, 12 - Como (CO)
Richiedi informazioni
Valle & Mazzoni
Per informazioni su questo immobile puoi contattarci telefonicamente al numero indicato sotto oppure inviarci una email attraverso il modulo di richiesta diretta.
Cookie preference